Price £1,375,000 New Instruction
  • Commanding some of the finest southerly views over countryside to the sea
  • Prestigious Friston location
  • Magnificent 27' x 20' kitchen/dining room
  • Three reception rooms
  • Four bedrooms
  • Three bath/shower rooms (two en-suite)
  • Separate studio and gymnasium on garden level
  • Southerly facing gardens
  • Car port and ample off-road parking
  • Gas central heating and sealed unit double glazing

Available with no onward chain- An exceptional detached residence of individual design having been significantly extended and redesigned by the present owner to take full advantage of the glorious panoramic views over rolling countryside to Belle Tout lighthouse and the sea beyond. The extensive living accommodation comprises an exceptional 27' x 20' kitchen/dining room with underfloor heating and patio doors opening onto the magnificent south facing terrace spanning the full width of the property taking full advantage of the magnificent views. The spacious kitchen area is fitted with a comprehensive range of contemporary wall, base units and larder cupboards, with intergrated appliances that include two steam ovens, Elica induction hob and extraction unit set within the centre island, a wine cooler and coffee machine. The principal sitting room is open plan to the kitchen/dining room and there is a cinema room and third reception room. A glass and oak staircase rises to the first floor with the principal bedroom suite with a large dressing room and contemporary en-suite shower room. The second and third bedrooms are served by a Jack and Jill shower room whilst the fourth bedroom is served by a beautifully appointed family bathroom. A spiral staircase from the kitchen leads down to the garden level with a gymnasium and separate studio with kitchenette and shower room. The rear garden is on two levels the first provides an area of level lawn extending to approximately 50' and a lower level, where there were plans to create a natural swimming pool. There is ample off-road parking and a car port to the front of the property. Located in the much favoured downland village of Friston, local shopping facilities are available in Downlands Way with other amenities including the famous Tiger Inn set around East Dean village green.Eastbourne college, Bedes, Brighton College, and in catchment area for Seaford Head (No1 in academic performance in Lewes District) & highly sought after Seaford primary schools are all in the vicinity.

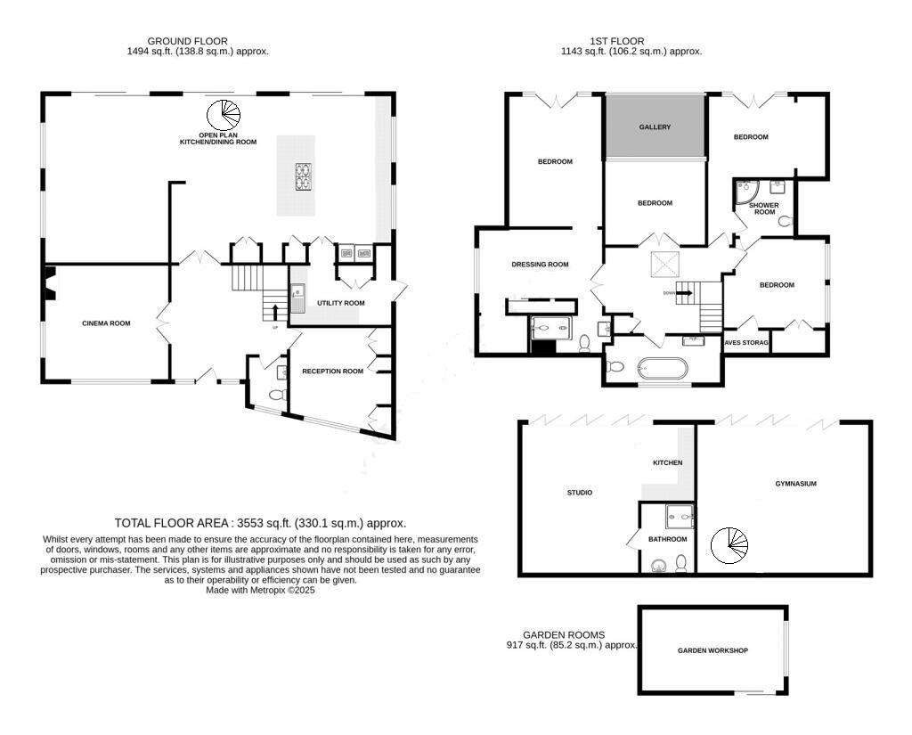
RECEPTION HALL

CLOAKROOM/WC

OPEN PLAN KITCHEN/DINING/SITTING ROOM

KITCHEN/DINING AREA - 27'6" (8.38m) x 20'6" (6.25m)

SITTING AREA - 19'6" (5.94m) x 15'6" (4.72m)

CINEMA ROOM - 15'10" (4.83m) x 14'6" (4.42m)

THIRD RECEPTION ROOM - 13'6" (4.11m) x 12'6" (3.81m)

UTILITY ROOM

FIRST FLOOR LANDING

PRINCIPAL BEDROOM SUITE - 25'6" (7.77m) x 15'0" (4.57m)
to include DESSING ROOM AND EN-SUITE SHOWER ROOM.

BEDROOM 2 - 12'6" (3.81m) x 11'0" (3.35m)

JACK & JILL SHOWER ROOM

BEDROOM 3 - 12'0" (3.66m) x 10'0" (3.05m)

BEDROOM 4 - 9'9" (2.97m) x 9'0" (2.74m)

FAMILY BATHROOM

GARDEN FLOOR LEVEL

SELF-CONTAINED ANNEX
with kitchenette and shower room.

GYMNASIUM

OUTSIDE:

GARDENS FRONT & REAR

CARPORT & OFF ROAD PARKING
with EV charging point.

COUNCIL TAX:
Band `F`

EPC:
`C`



Council Tax
Eastbourne Borough Council, Band F

Notice
Please note we have not tested any apparatus, fixtures, fittings, or services. Interested parties must undertake their own investigation into the working order of these items. All measurements are approximate and photographs provided for guidance only.


/// common.heat.humid is the what3words address for the best entrance. what3words has given every 3 metre square in the world a unique combination of 3 random words.

Floor Plan
EER Chart

The Energy-Efficiency Rating is a measure of a home's overall efficiency. The higher the rating, the more energy-efficient the home is, and the lower the fuel bills are likely to be.

Utility Supply Type
Electric Unknown
Gas Unknown
Water Unknown
Sewerage Unknown
Broadband Unknown
Telephone Unknown

Other Items Description
Heating Gas Central Heating
Garden/Outside Space Yes
Parking Yes
Garage No

Broadband Coverage Highest Available Download Speed Highest Available Upload Speed
Standard 25 Mbps 1 Mbps
Superfast Not Available Not Available
Ultrafast 1800 Mbps 220 Mbps

Mobile Coverage Indoor Voice Indoor Data Outdoor Voice Outdoor Data
EE Likely Likely Enhanced Enhanced
Three Likely Likely Enhanced Enhanced
O2 Enhanced Enhanced Enhanced Enhanced
Vodafone Likely Likely Enhanced Enhanced

Broadband and Mobile coverage information supplied by Ofcom.


marker icon