Price £300,000 New Instruction
  • Detached bungalow
  • Two bedrooms
  • Sitting room / dining room
  • Quiet cul de sac location
  • Delightful gardens
  • Garage
  • Chain free

A two bedroom detached bungalow located in a quiet residential cul de sac in the Hampden Park area of Eastbourne close to local shops and excellent bus links. This delightful bungalow is offered to the market chain free and offers well proportioned accommodation comprising an entrance hall, a sitting room/dining room, a kitchen, two bedrooms and a family bathroom. The property also has a driveway affording off road parking for three/four cars, a garage and delightful gardens to the front and rear. Additional benefits include gas fired central heating and double glazing. Local shopping facilities are available in Lindfield Road and Maywood Avenue, whilst the centre of Hampden Park with its mainline railway station is approximately 1 mile distant. An internal inspection is essential to appreciate the merits of this fine property.



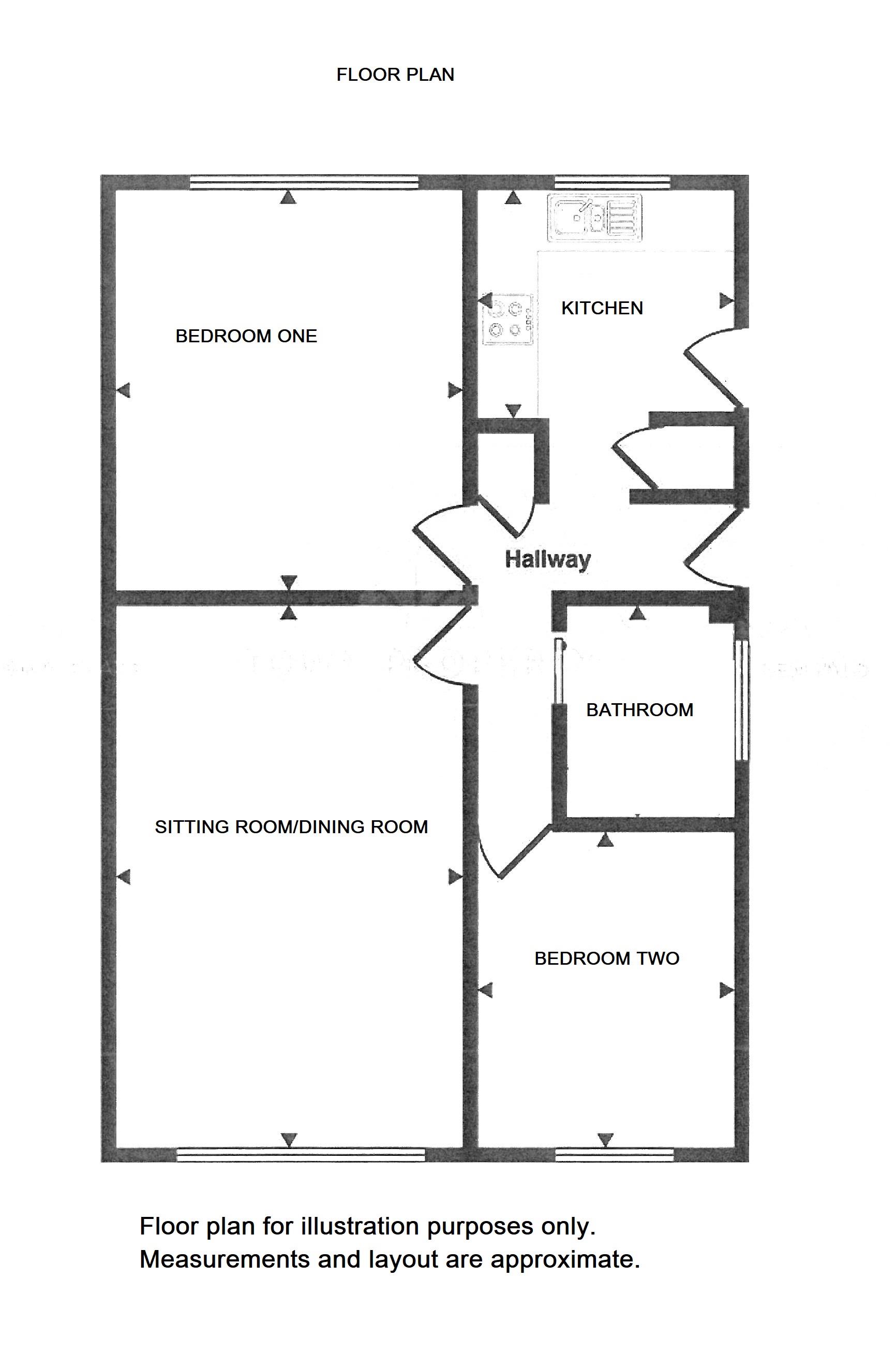
ENTRANCE HALL

SITTING ROOM / DINING ROOM - 17'8" (5.38m) x 11'2" (3.4m)

KITCHEN - 10'0" (3.05m) x 8'6" (2.59m)

BEDROOM ONE - 13'0" (3.96m) x 11'0" (3.35m)
Range of built in furniture

BEDROOM TWO - 10'0" (3.05m) x 8'6" (2.59m)

FAMILY BATHROOM

OUTSIDE

DRIVEWAY
With off road parking for up to three cars leading to

GARAGE - 16'6" (5.03m) x 7'10" (2.39m)

FRONT GARDEN

REAR GARDEN
Hosting a plethora of mature plants and trees

COUNCIL TAX:
BAND `C`

EPC:
`D`



Council Tax
Eastbourne Borough Council, Band C

Notice
Please note we have not tested any apparatus, fixtures, fittings, or services. Interested parties must undertake their own investigation into the working order of these items. All measurements are approximate and photographs provided for guidance only.


/// oldest.forum.life is the what3words address for the best entrance. what3words has given every 3 metre square in the world a unique combination of 3 random words.

Floor Plan
EER Chart

The Energy-Efficiency Rating is a measure of a home's overall efficiency. The higher the rating, the more energy-efficient the home is, and the lower the fuel bills are likely to be.

Utility Supply Type
Electric Mains Supply
Gas None
Water Mains Supply
Sewerage None
Broadband None
Telephone None

Other Items Description
Heating Gas Central Heating
Garden/Outside Space No
Parking No
Garage Yes

Broadband Coverage Highest Available Download Speed Highest Available Upload Speed
Standard Unknown Unknown
Superfast Unknown Unknown
Ultrafast Unknown Unknown

Mobile Coverage Indoor Voice Indoor Data Outdoor Voice Outdoor Data
EE Unknown Unknown Unknown Unknown
Three Unknown Unknown Unknown Unknown
O2 Unknown Unknown Unknown Unknown
Vodafone Unknown Unknown Unknown Unknown

Broadband and Mobile coverage information supplied by Ofcom.


marker icon