Price £850,000 New Instruction
  • Spacious five bedroom executive home
  • Quiet cul-de-sac in Summerdown/Old Town area
  • Close to Royal Eastbourne Golf Club, South Downs, Gildredge Park and Waitrose
  • Sitting room
  • Dining room
  • Kitchen/breakfast room
  • Double garage and large workshop that could be converted to an annexe
  • Chain Free
  • Bathroom plus en-suite bath/shower room as well as ground floor wc
  • Double glazed and gas central heating

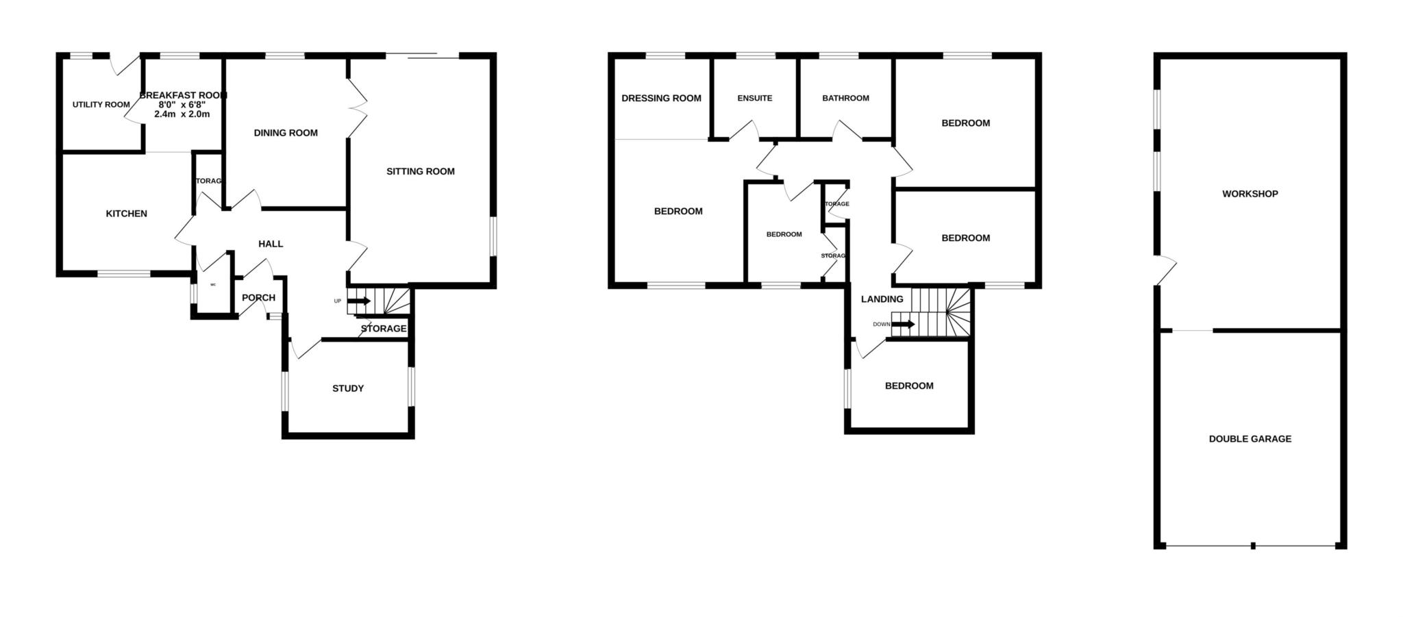
A substantial five bedroom detached house with double garage and large driveway tucked away in a small residential cul-de-sac in the much sought after Summerdown/Old Town area of Eastbourne. This delightful property is offered to the market chain free and is located within easy reach of the popular Royal Eastbourne Golf Course as well as the South Downs National Park, excellent schools, Gildredge Park and a Waitrose store. Accommodation comprises spacious entrance hall, sitting room with pleasant outlook over gardens, dining room, kitchen/breakfast room with range of matching wall and base units as well as areas of work surface and door to a useful utility room. There is also an office on the ground floor which is perfect for those that work from home and a wc completes the ground floor accommodation. Stairs rise to a large first floor landing where there are five excellent size bedrooms and a family bathroom/wc, the principal bedroom suite enjoys an en-suite bath/shower room and a walk in dressing area. The property occupies a generous sized plot with the front boasting a large block paved driveway providing off road parking for several vehicles which leads to a double garage with a large 22ft x 15ft workshop to the rear that could be easily be converted into a self contained annexe (subject to the usual consents) . The back garden has been well landscaped with areas of patio, lawn and a variety of plants and shrubs. Additional benefits include double glazing and gas central heating.

ENTRANCE HALL

SITTING ROOM - 18'9" (5.72m) x 11'10" (3.61m)

DINING ROOM - 12'7" (3.84m) x 10'3" (3.12m)

STUDY - 10'9" (3.28m) x 7'0" (2.13m)

KITCHEN - 11'5" (3.48m) x 10'2" (3.1m)

BREAKFAST ROOM - 7'7" (2.31m) x 7'0" (2.13m)

UTILITY ROOM - 8'0" (2.44m) x 6'11" (2.11m)

WC

FIRST FLOOR LANDING

BEDROOM 1 - 11'3" (3.43m) x 12'0" (3.66m)

DRESSING AREA - 7'3" (2.21m) x 6'4" (1.93m)

EN-SUITE BATH / SHOWER ROOM

BEDROOM 2 - 10'5" (3.18m) x 9'7" (2.92m)

BEDROOM 3 - 12'1" (3.68m) x 8'0" (2.44m)

BEDROOM 4 - 10'8" (3.25m) x 7'4" (2.24m)

BEDROOM 5 - 8'1" (2.46m) x 7'3" (2.21m)

FAMILY BATHROOM

OUTSIDE:

DRIVEWAY

DOUBLE GARAGE - 18'0" (5.49m) x 16'7" (5.05m)

WORKSHOP - 22'10" (6.96m) x 15'7" (4.75m)

WRAP AROUND GARDENS

COUNCIL TAX:
Band `G`

EPC: - 0" (0m) x 3'0" (0.91m)
`C`



Council Tax
Eastbourne Borough Council, Band G

Notice
Please note we have not tested any apparatus, fixtures, fittings, or services. Interested parties must undertake their own investigation into the working order of these items. All measurements are approximate and photographs provided for guidance only.

Floor Plan
EER Chart

The Energy-Efficiency Rating is a measure of a home's overall efficiency. The higher the rating, the more energy-efficient the home is, and the lower the fuel bills are likely to be.

Utility Supply Type
Electric Mains Supply
Gas Mains Supply
Water Mains Supply
Sewerage Unknown
Broadband Unknown
Telephone Unknown

Other Items Description
Heating Gas Central Heating
Garden/Outside Space Yes
Parking Yes
Garage Yes

Broadband Coverage Highest Available Download Speed Highest Available Upload Speed
Standard 14 Mbps 1 Mbps
Superfast 67 Mbps 20 Mbps
Ultrafast 1800 Mbps 1000 Mbps

Mobile Coverage Indoor Voice Indoor Data Outdoor Voice Outdoor Data
EE Enhanced Enhanced Enhanced Enhanced
Three Likely Likely Enhanced Enhanced
O2 Likely Likely Enhanced Enhanced
Vodafone Likely Likely Enhanced Enhanced

Broadband and Mobile coverage information supplied by Ofcom.


marker icon