Guide Price £475,000 Available
  • Delightful three bedroom detached house
  • Popular Old Town location
  • Renovated throughout with new flooring
  • Modern kitchen and bathroom
  • Ground floor wc
  • Pleasant gardens
  • Close to excellent schools
  • Chain Free
  • Driveway and garage
  • Double glazing and gas central heating

GUIDE PRICE £475,000 - £485,000. A beautifully presented and recently renovated three bedroom detached house boasting a driveway and garage located towards the end of a quiet cul-de-sac in the popular Old Town area of Eastbourne boasting views of the South Downs. This delightful property is offered to the market chain free and enjoys bright and spacious accommodation throughout comprising entrance porch, large entrance hall, sitting room opening to dining room, modern kitchen, downstairs wc, three good size bedrooms and a modern bathroom. To the front there is a long driveway providing off road parking for several vehicles leading to a garage with up and over door and to the rear there is a secluded well stocked garden with area of lawn, patio and variety of plants, shrubs and trees. Additional benefits include double glazing and gas central heating. This wonderful home has been the subject of recent redecorating as well as new carpets and flooring. The property is located close to a number of excellent schools as well as bus routes, local shops and Eastbourne town centre with mainline railway station, Beacon shopping centre, restaurants, cafes and seafront is just over a mile away.



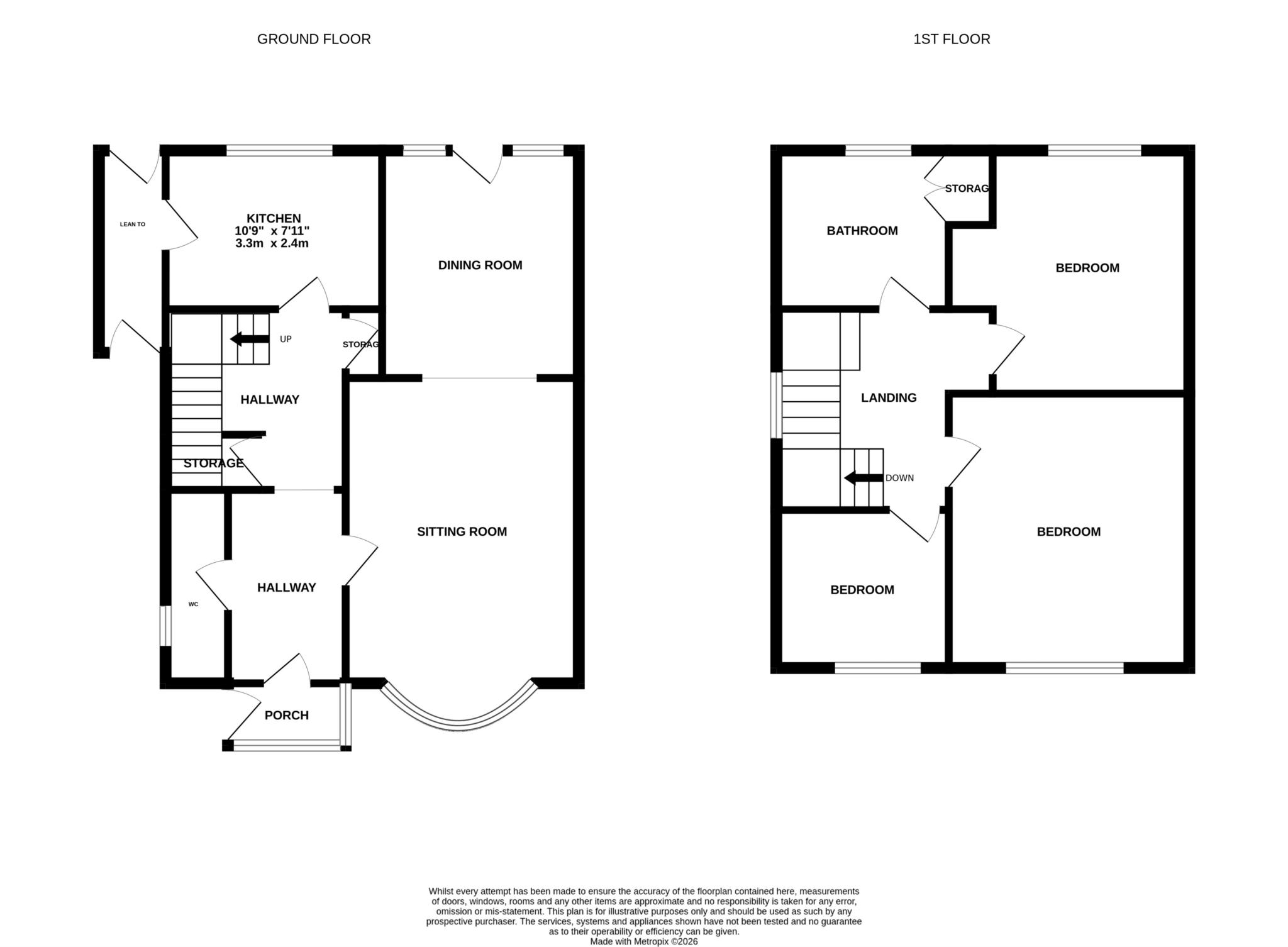
ENTRANCE PORCH

ENTRANCE HALL

SITTING ROOM - 15'11" (4.85m) x 11'7" (3.53m)

DINING ROOM - 11'3" (3.43m) x 9'9" (2.97m)

KITCHEN - 10'9" (3.28m) x 7'11" (2.41m)

GROUND FLOOR WC

FIRST FLOOR LANDING

BEDROOM 1 - 13'7" (4.14m) x 11'9" (3.58m)

BEDROOM 2 - 12'2" (3.71m) x 11'2" (3.4m)

BEDROOM 3 - 8'11" (2.72m) x 7'10" (2.39m)

BATHROOM/WC

OUTSIDE:

FRONT & REAR GARDENS

DRIVEWAY

GARAGE

COUNCIL TAX:
Band "E"

EPC:
"C"



Council Tax
Eastbourne Borough Council, Band E

Notice
Please note we have not tested any apparatus, fixtures, fittings, or services. Interested parties must undertake their own investigation into the working order of these items. All measurements are approximate and photographs provided for guidance only.

Floor Plan
EER Chart

The Energy-Efficiency Rating is a measure of a home's overall efficiency. The higher the rating, the more energy-efficient the home is, and the lower the fuel bills are likely to be.

Utility Supply Type
Electric Mains Supply
Gas Mains Supply
Water Mains Supply
Sewerage None
Broadband None
Telephone None

Other Items Description
Heating Gas Central Heating
Garden/Outside Space Yes
Parking Yes
Garage Yes

Broadband Coverage Highest Available Download Speed Highest Available Upload Speed
Standard 15 Mbps 1 Mbps
Superfast 46 Mbps 8 Mbps
Ultrafast 1800 Mbps 1000 Mbps

Mobile Coverage Indoor Voice Indoor Data Outdoor Voice Outdoor Data
EE Likely Likely Enhanced Enhanced
Three Likely Likely Enhanced Enhanced
O2 Likely Likely Enhanced Enhanced
Vodafone Likely Likely Enhanced Enhanced

Broadband and Mobile coverage information supplied by Ofcom.


marker icon