Price £285,000 New Instruction
  • Spacious double fronted house with off-road parking
  • Three double bedrooms
  • Three reception rooms
  • Two bath/shower rooms
  • Adjacent to Seaside Recreational Ground
  • Excellent refurbishment project
  • No onward chain

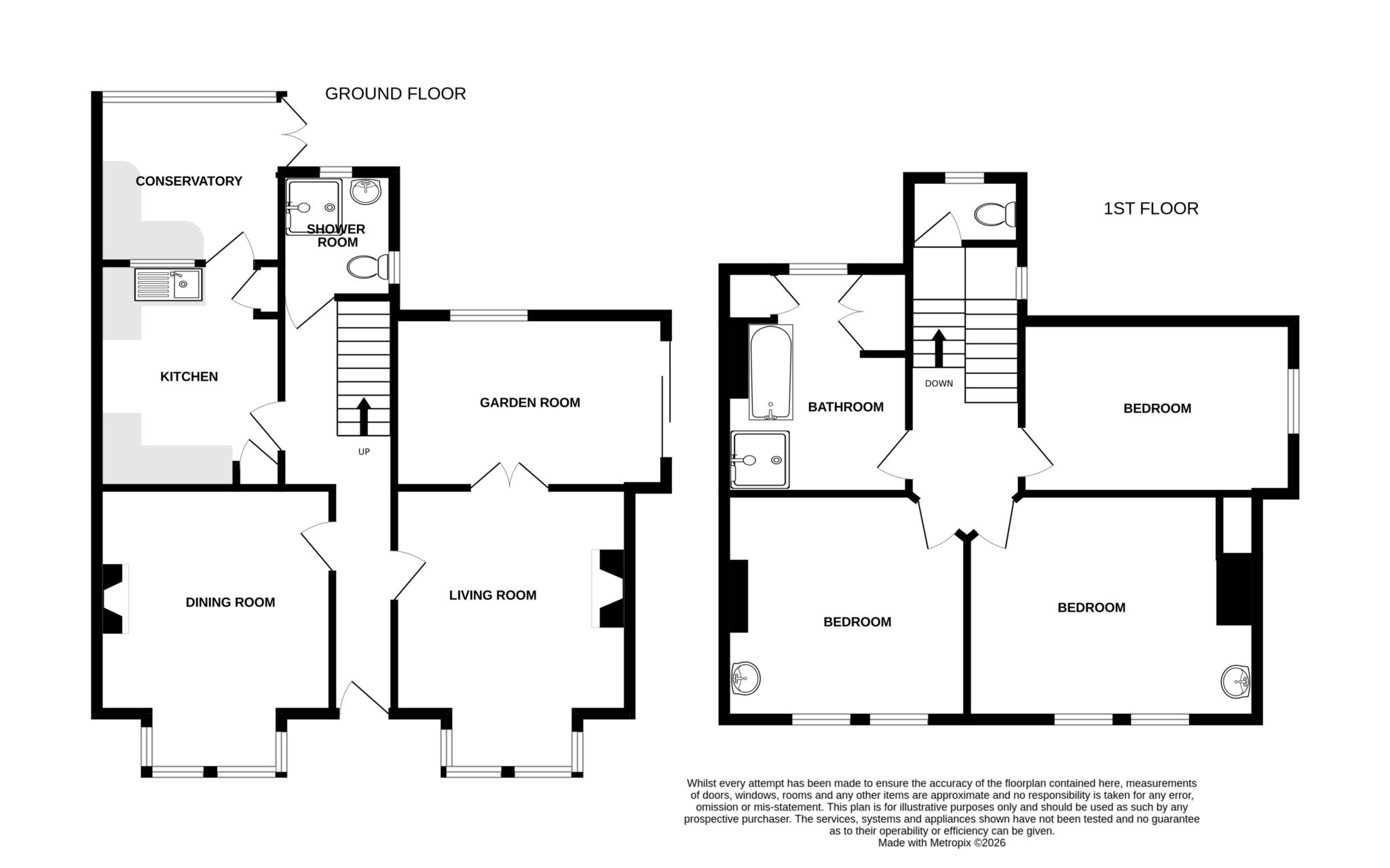
A rare opportunity to secure a remarkably spacious double fronted house with three double bedrooms, and off-road parking in the Seaside area of Eastbourne available with no onward chain. The accommodation comprises three reception rooms, a kitchen, sun room/utility room and shower room on the ground floor and three good size bedrooms and bathroom on the first floor. There are courtyard gardens to the front and side together with off-road parking for two/three vehicles. The house is in need of complete modernisation and redecoration and provides a blank canvas for those wishing to create a delightful home in the style and decor of their choosing. Located in the Seaside area of Eastbourne, virtually adjacent to Seaside Recreational Ground, the town centre and railway station are little more than a half mile away and the seafront is a similar distance.

HALL

SITTING ROOM - 12'0" (3.66m) x 14'9" (4.5m) Into Bay
Opening into:

THIRD RECEPTION ROOM

DINING ROOM - 14'3" (4.34m) Into Bay x 12'0" (3.66m)

KITCHEN - 11'6" (3.51m) x 9'6" (2.9m)

UTILITY/SUN ROOM - 8'9" (2.67m) x 8'6" (2.59m)

SHOWER ROOM/WC

FIRST FLOOR HALF LANDING

SEPARATE WC

FIRST FLOOR LANDING

BEDROOM 1 - 14'6" (4.42m) x 11'6" (3.51m)

BEDROOM 2 - 12'6" (3.81m) x 11'4" (3.45m)

BEDROOM 3 - 11'6" (3.51m) x 9'0" (2.74m)

BATHROOM - 11'4" (3.45m) x 9'4" (2.84m)

OUTSIDE

GARDENS TO REAR AND SIDE

OFF-ROAD PARKING
For two/three vehicles

COUNCIL TAX
Band `B`

EPC
Band `D`



Council Tax
Eastbourne Borough Council, Band B

Notice
Please note we have not tested any apparatus, fixtures, fittings, or services. Interested parties must undertake their own investigation into the working order of these items. All measurements are approximate and photographs provided for guidance only.

Floor Plan
EER Chart

The Energy-Efficiency Rating is a measure of a home's overall efficiency. The higher the rating, the more energy-efficient the home is, and the lower the fuel bills are likely to be.

Utility Supply Type
Electric Unknown
Gas Unknown
Water Unknown
Sewerage Unknown
Broadband Unknown
Telephone Unknown

Other Items Description
Heating Gas Central Heating
Garden/Outside Space Yes
Parking Yes
Garage No

Broadband Coverage Highest Available Download Speed Highest Available Upload Speed
Standard Unknown Unknown
Superfast Unknown Unknown
Ultrafast Unknown Unknown

Mobile Coverage Indoor Voice Indoor Data Outdoor Voice Outdoor Data
EE Unknown Unknown Unknown Unknown
Three Unknown Unknown Unknown Unknown
O2 Unknown Unknown Unknown Unknown
Vodafone Unknown Unknown Unknown Unknown

Broadband and Mobile coverage information supplied by Ofcom.


marker icon