Price £550,000 New Instruction
  • Two bedroom character detached house
  • Charming features
  • Sitting room
  • Dining room
  • Kitchen with adjoining breakfast room
  • Bathroom plus ground floor wc
  • Study/office
  • Attractive gardens to front, side and rear
  • Garage and off road parking
  • Popular Willingdon Village

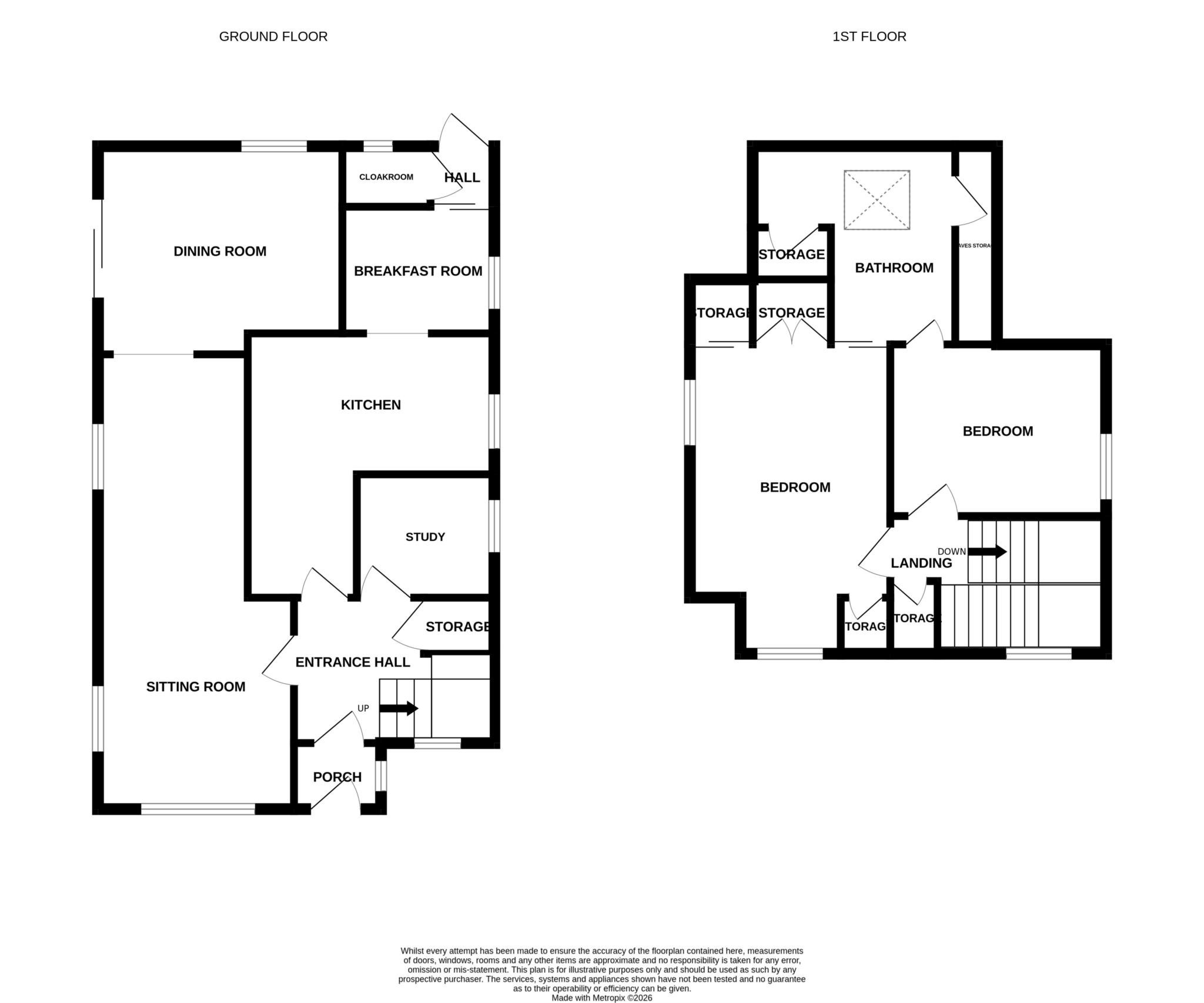
A charming two bedroom detached house boasting an abundance of character located in the much sought after Willingdon village. This delightful property boasts a number of attractive features and enjoys accommodation comprising entrance porch, entrance hall, spacious sitting room opening to a pleasant dining room, there is a good size kitchen with range of matching wall and base units along with areas of work surface, a breakfast room, a useful study/office and a cloakroom/wc competes the ground floor accommodation. Stairs rise from the entrance hall to the first floor landing where there are two bedrooms in addition to a Jack and Jill bathroom which serves both of the bedrooms, the bathroom has a suite comprising panelled bath, independent shower cubicle, wash hand basin and low level wc. The property is set within attractive gardens to the front, side and rear and there is the benefit of a detached garage and off parking to the rear. The property is located in Church Street, Willingdon which provides easy access to the South Downs and close to St Marys Church and a number of pubs, cafes and restaurants.

ENTRANCE PORCH

ENTRANCE HALL

SITTING ROOM - 22'5" (6.83m) x 10'0" (3.05m) Max

DINING ROOM - 12'1" (3.68m) x 10'6" (3.2m)

STUDY - 7'0" (2.13m) x 6'2" (1.88m)

L-SHAPED KITCHEN - 13'1" (3.99m) Max x 12'1" (3.68m) Max

BREAKFAST ROOM - 7'8" (2.34m) x 5'9" (1.75m)

DOWNSTAIRS WC

FIRST FLOOR LANDING

BEDROOM 1 - 15'5" (4.7m) x 10'2" (3.1m)

BEDROOM 2 - 10'10" (3.3m) x 8'5" (2.57m)

JACK & JILL BATHROOM

OUTSIDE:

ATTRACTIVE GARDENS TO THE FRONT, SIDE & REAR

DETACHED GARAGE

OFF-ROAD PARKING TO THE FRONT.

COUNCIL TAX:
Band "E"

EPC:
D



Council Tax
Wealden District Council, Band E

Notice
Please note we have not tested any apparatus, fixtures, fittings, or services. Interested parties must undertake their own investigation into the working order of these items. All measurements are approximate and photographs provided for guidance only.

Floor Plan
EER Chart

The Energy-Efficiency Rating is a measure of a home's overall efficiency. The higher the rating, the more energy-efficient the home is, and the lower the fuel bills are likely to be.

Utility Supply Type
Electric Mains Supply
Gas Mains Supply
Water Mains Supply
Sewerage None
Broadband None
Telephone None

Other Items Description
Heating Gas Central Heating
Garden/Outside Space Yes
Parking Yes
Garage Yes

Broadband Coverage Highest Available Download Speed Highest Available Upload Speed
Standard 14 Mbps 1 Mbps
Superfast 63 Mbps 13 Mbps
Ultrafast Not Available Not Available

Mobile Coverage Indoor Voice Indoor Data Outdoor Voice Outdoor Data
EE Enhanced Enhanced Enhanced Enhanced
Three Enhanced Likely Enhanced Enhanced
O2 Enhanced Likely Enhanced Enhanced
Vodafone Likely Likely Enhanced Enhanced

Broadband and Mobile coverage information supplied by Ofcom.


marker icon