Guide Price £675,000 Available
  • Stunning detached bungalow
  • Popular Willingdon Village location
  • Beautifully presented throughout
  • Excellent size gardens backing onto woodland
  • Large driveway and detached double garage
  • Modern kitchen/breakfast room
  • Stunning bathroom, en-suite shower room and separate wc
  • Spacious sitting/dining room
  • Double glazed and gas central heating
  • Chain Free

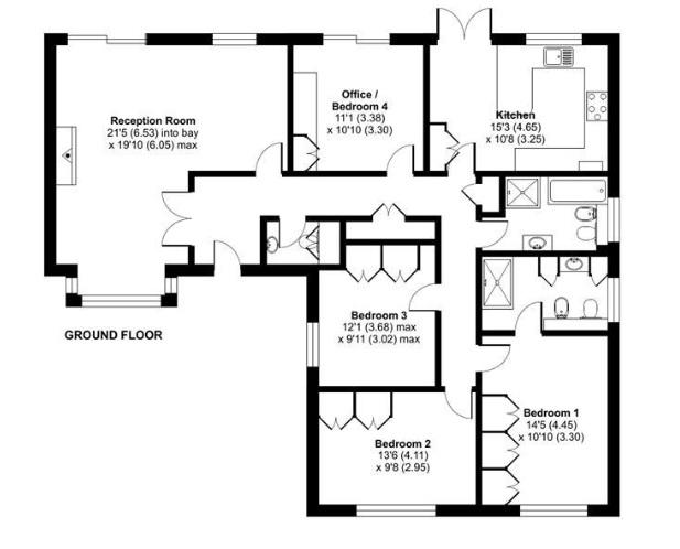
GUIDE PRICE £675,000 - £725,000. A beautifully presented four bedroom detached bungalow occupying an elevated position and nestled in a quiet cul-de-sac within the sought after Willingdon Village area of Eastbourne. This stunning property backs directly onto woodland and has been much improved by the current owner. The property enjoys accommodation comprising spacious entrance hall, sitting room with double aspect overlooking front and rear gardens, modern kitchen/dining room with range of matching wall and base units beneath contoured worktops, variety of integral appliances and french doors opening to the rear garden. There are four excellent size bedrooms and there is a modern bathroom/wc in addition to a luxury en-suite shower room to the main bedroom, as well as separate wc located off the hallway. A particular feature is the large well maintained rear garden which backs onto woodland and enjoys a high level of seclusion with a large patio area, area of lawn, outside lighting and screened by close panel fencing. To the front, the property is set back from the road and has a large area of lawn and a sweeping driveway providing off road parking for several vehicles, there is the added benefit and convenience of a detached double garage. The property has the additional benefits of double glazing and gas central heating. There are engineered hardwood floors throughout as well as a water softener, Hive central heating controls and modern Viessman gas boiler. The property has access to the woodland behind and has good access up to Butts Brow. There are stunning panoramic views from the front and an internal viewing is highly recommended to appreciate the many merits of this fine property.

ENTRANCE HALL

SITTING/DINING ROOM - 21'0" (6.4m) x 19'10" (6.05m)

KITCHEN/BREAKFAST ROOM - 15'3" (4.65m) x 10'8" (3.25m)

BEDROOM 1 - 14'5" (4.39m) x 10'10" (3.3m)

EN-SUITE SHOWER ROOM

BEDROOM 2 - 13'6" (4.11m) x 9'8" (2.95m)

BEDROOM 3 - 12'1" (3.68m) x 9'11" (3.02m)

BEDROOM 4 - 11'1" (3.38m) x 10'10" (3.3m)

BATHROOM

WC

OUTSIDE:

LARGE GARDENS FRONT & REAR

DRIVEWAY

DETACHED DOUBLE GARAGE - 17'10" (5.44m) x 15'7" (4.75m)

COUNCIL TAX:
Band `F`

EPC:
`C`



Council Tax
Eastbourne Borough Council, Band F

Notice
Please note we have not tested any apparatus, fixtures, fittings, or services. Interested parties must undertake their own investigation into the working order of these items. All measurements are approximate and photographs provided for guidance only.

Floor Plan
EER Chart

The Energy-Efficiency Rating is a measure of a home's overall efficiency. The higher the rating, the more energy-efficient the home is, and the lower the fuel bills are likely to be.

Utility Supply Type
Electric Unknown
Gas Unknown
Water Unknown
Sewerage Unknown
Broadband Unknown
Telephone Unknown

Other Items Description
Heating Not Specified
Garden/Outside Space No
Parking No
Garage No

Broadband Coverage Highest Available Download Speed Highest Available Upload Speed
Standard 15 Mbps 1 Mbps
Superfast 80 Mbps 20 Mbps
Ultrafast 1800 Mbps 220 Mbps

Mobile Coverage Indoor Voice Indoor Data Outdoor Voice Outdoor Data
EE Enhanced Enhanced Enhanced Enhanced
Three Likely Likely Enhanced Enhanced
O2 Likely No Signal Enhanced Enhanced
Vodafone Likely Likely Enhanced Enhanced

Broadband and Mobile coverage information supplied by Ofcom.


marker icon