Price £325,000 New Instruction
  • Top floor duplex apartment
  • 27' Living/dining room
  • Glazed reception room on top floor
  • Large L-shaped roof terrace with sea view
  • Two bedrooms
  • Two bathrooms
  • Allocated parking space
  • Chain free

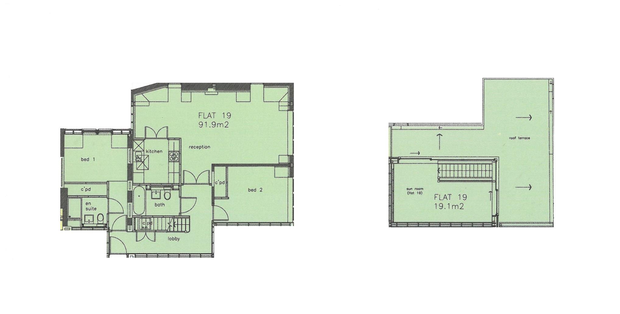
A beautifully appointed third and fourth floor duplex penthouse apartment forming part of a modern conversion located in Meads Street with large roof terrace. The unusually spacious accommodation is served by a passenger lift and includes a splendid 27'3 x 12'10 (maximum) living/dining room, 2 bedrooms and separate kitchen area. There is also a glazed reception room located on the fourth floor, which opens out onto the impressive L-shape roof terrace, providing wonderful sea views over Meads village. There are en-suite facilities to the master bedroom and the kitchen is well fitted with a comprehensive range of integrated Miele appliances and granite worktops. Other benefits include individually controlled electric radiators and double glazed sash windows throughout as well as under floor electric heating to both bathrooms. Located in the favoured Meads area, the shopping facilities of Meads Street are on your doorstep, with the seafront being only a few hundred yards away. Eastbourne town centre and railway station are approximately 1.5 miles distant. The property is available with no onward chain.

COMMUNAL ENTRANCE HALL

STAIRS AND LIFT TO THIRD FLOOR

ENTRANCE HALL

LIVING ROOM - 27'3" (8.31m) x 12'10" (3.91m) Max

KITCHEN - 9'1" (2.77m) x 8'1" (2.46m)
With integrated oven, hob, extractor unit, fridge freezer and dishwasher

BEDROOM 1 - 10'7" (3.23m) x 10'6" (3.2m)

EN-SUITE SHOWER ROOM

BEDROOM 2 - 13'10" (4.22m) x 10'3" (3.12m)

FAMILY BATHROOM

STAIRS TO UPPER FLOOR

GLAZED RECEPTION / SUN ROOM - 19'2" (5.84m) x 11'6" (3.51m)
Door to:

L-SHAPED ROOF TERRACE

OUTSIDE:

ALLOCATED PARKING SPACE

COUNCIL TAX:
Band `E`

EPC:
`D`

LEASE:
New 125 year Lease

MAINTENANCE:
£2,493.67 per annum, billed half yearly

GROUND RENT:
Peppercorn

PETS:
Allowed

SUB LETTING:
Allowed


(All details concerning the terms of the Lease and outgoings are subject to verification)



Council Tax
Eastbourne Borough Council, Band E

Notice
Please note we have not tested any apparatus, fixtures, fittings, or services. Interested parties must undertake their own investigation into the working order of these items. All measurements are approximate and photographs provided for guidance only.

Floor Plan
EER Chart

The Energy-Efficiency Rating is a measure of a home's overall efficiency. The higher the rating, the more energy-efficient the home is, and the lower the fuel bills are likely to be.

Utility Supply Type
Electric Unknown
Gas Unknown
Water Unknown
Sewerage Unknown
Broadband Unknown
Telephone Unknown

Other Items Description
Heating Electric Heaters
Garden/Outside Space Yes
Parking Yes
Garage No

Broadband Coverage Highest Available Download Speed Highest Available Upload Speed
Standard 6 Mbps 0.7 Mbps
Superfast 70 Mbps 18 Mbps
Ultrafast 1800 Mbps 220 Mbps

Mobile Coverage Indoor Voice Indoor Data Outdoor Voice Outdoor Data
EE Enhanced Enhanced Enhanced Enhanced
Three Enhanced Enhanced Enhanced Enhanced
O2 Enhanced Enhanced Enhanced Enhanced
Vodafone Enhanced Enhanced Enhanced Enhanced

Broadband and Mobile coverage information supplied by Ofcom.


marker icon