Price £140,000 Available
  • One bedroom ground floor flat
  • Close to town centre, theatres, seafront and Devonshire Park tennis club
  • Sitting room
  • Kitchen
  • Shower room
  • Remainder of 999 year lease
  • Share of freehold
  • Double glazed and electric heating

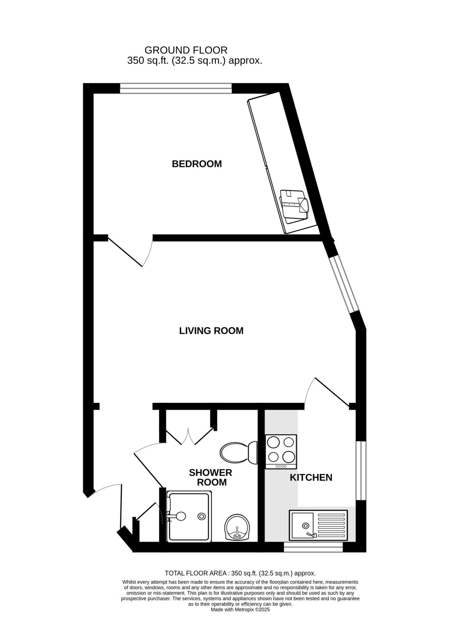
A pleasant one bedroom flat located on the ground floor of this well maintained purpose built block conveniently located close to Eastbourne town centre, train station, theatres and seafront. This delightful flat enjoys accommodation comprising communal entrance hall, private entrance hall, sitting room, kitchen with range of work surface, matching wall and base units plus inset sink with mixer tap, one double bedroom and shower room/wc with shower cubicle, wash hand basin, low level wc and tiled walls. The property has the benefit of a share of the freehold plus the remainder of a 999 year lease. Additional benefits include double glazing and electric heating. Vernon Lodge is conveniently located within close proximity to a number of excellent theatres as well as the Devonshire Park Tennis club and Towner gallery. Eastbourne town centre, train station and seafront are also within walking distance. The buildings roof has recently been replaced.



COMMUNAL ENTRANCE HALL

PRIVATE ENTRANCE HALL

SITTING ROOM - 14'9" (4.5m) x 9'9" (2.97m)

KITCHEN - 7'9" (2.36m) x 5'2" (1.57m)

BEDROOM - 9'8" (2.95m) x 8'9" (2.67m)

SHOWER ROOM

LEASE:
remainder of 999 year Lease (Share of Freehold)

MAINTENANCE:
£393 per quarter

PETS:
Allowed

LETTING:
Not allowed

COUNCIL TAX:
Band `A`

EPC:
`E`


(All details concerning the terms of the Lease & outgoings are subject to verification)



Council Tax
Eastbourne Borough Council, Band A

Service Charge
£393.00 Quarter Yearly

Lease Length
998 Years

Notice
Please note we have not tested any apparatus, fixtures, fittings, or services. Interested parties must undertake their own investigation into the working order of these items. All measurements are approximate and photographs provided for guidance only.

Floor Plan
EER Chart

The Energy-Efficiency Rating is a measure of a home's overall efficiency. The higher the rating, the more energy-efficient the home is, and the lower the fuel bills are likely to be.

Utility Supply Type
Electric Mains Supply
Gas Mains Supply
Water Mains Supply
Sewerage None
Broadband None
Telephone None

Other Items Description
Heating Gas Central Heating
Garden/Outside Space No
Parking No
Garage No

Broadband Coverage Highest Available Download Speed Highest Available Upload Speed
Standard 15 Mbps 1 Mbps
Superfast 69 Mbps 20 Mbps
Ultrafast Not Available Not Available

Mobile Coverage Indoor Voice Indoor Data Outdoor Voice Outdoor Data
EE Enhanced Enhanced Enhanced Enhanced
Three Enhanced Enhanced Enhanced Enhanced
O2 Enhanced Enhanced Enhanced Enhanced
Vodafone Likely Likely Enhanced Enhanced

Broadband and Mobile coverage information supplied by Ofcom.


marker icon