Price £800,000 Available
  • Magnificent 180° views to the sea and South Downs
  • 40' x 14' southerly facing terrace
  • Three principal bedrooms on the ground floor
  • Two bath/shower rooms (one en-suite)
  • Two reception rooms
  • Study/occasional fourth bedroom
  • Fitted kitchen and utility room
  • Landscaped gardens
  • Double garage
  • No onward chain

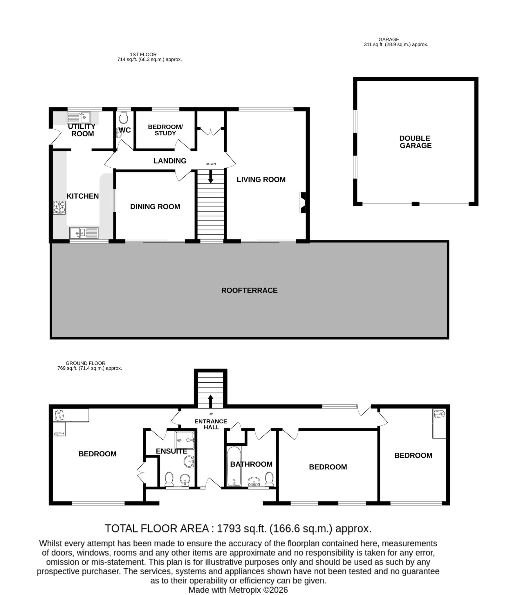
Occupying an elevated position in the heart of Meads- A three/four bedroom detached residence with 40' sun terrace affording outstanding panoramic views to The English Channel, available with no onward chain.The house has been thoughtfully designed with the bedrooms on the ground floor and the living accommodation on the first floor to take advantage of the delightful views. The ground floor comprises the three principal bedrooms, the master bedroom has an en-suite shower room, whilst the other two are served by the family bathroom.. A wide staircase rises to the first floor living accommodation that comprises a 19' sitting room, separate dining room and study/occasional bedroom. Patio doors from both the sitting room and dining room open on to a magnificent 40' x 14' southerly facing terrace that takes full advantage of the views. The kitchen/breakfast room has been re-fitted with a comprehensive range of wall and base units together with an integrated oven and hob. The utility room is plumbed for a washing machine. The house is set within landscaped gardens that back onto The South Downs National Park. Although now requiring redecoration and some further modernisation, benefits include off road parking in front of the double garage, gas central heating and sealed unit double glazing.

HALL

MASTER BEDROOM - 14'0" (4.27m) x 12'8" (3.86m)
+ door recess

EN -SUITE SHOWER ROOM

BEDROOM 2 - 15'0" (4.57m) x 10'4" (3.15m)

BEDROOM 3 - 13'10" (4.22m) x 10'0" (3.05m)

FAMILY BATHROOM

FIRST FLOOR LANDING

SITTING ROOM - 19'3" (5.87m) x 12'0" (3.66m)

SOUTH FACING TERRACE - 40'0" (12.19m) x 14'0" (4.27m)

DINING ROOM - 11'9" (3.58m) x 10'9" (3.28m)

STUDY/OCCASIONAL BEDROOM - 8'6" (2.59m) x 5'9" (1.75m)

KITCHEN - 13'3" (4.04m) x 8'3" (2.51m)

UTILITY ROOM - 8'2" (2.49m) x 5'9" (1.75m)

OUTSIDE

LANDSCAPED GARFDENS FRONT AND REAR

DOUBLE GARAGE
and off-road parking

EPC
Band `D`

COUNCIL TAX
Band `G`



Council Tax
Eastbourne Borough Council, Band G

Notice
Please note we have not tested any apparatus, fixtures, fittings, or services. Interested parties must undertake their own investigation into the working order of these items. All measurements are approximate and photographs provided for guidance only.

Floor Plan
EER Chart

The Energy-Efficiency Rating is a measure of a home's overall efficiency. The higher the rating, the more energy-efficient the home is, and the lower the fuel bills are likely to be.

Utility Supply Type
Electric Unknown
Gas Unknown
Water Unknown
Sewerage Unknown
Broadband Unknown
Telephone Unknown

Other Items Description
Heating Gas Central Heating
Garden/Outside Space Yes
Parking Yes
Garage Yes

Broadband Coverage Highest Available Download Speed Highest Available Upload Speed
Standard 5 Mbps 0.6 Mbps
Superfast 55 Mbps 15 Mbps
Ultrafast Not Available Not Available

Mobile Coverage Indoor Voice Indoor Data Outdoor Voice Outdoor Data
EE Enhanced Enhanced Enhanced Enhanced
Three Likely Likely Enhanced Enhanced
O2 Enhanced Likely Enhanced Enhanced
Vodafone Likely Likely Enhanced Enhanced

Broadband and Mobile coverage information supplied by Ofcom.


marker icon