-  Spaciously proportioned detached family house
 
-  Five/six  bedrooms
 
-  Two/three reception rooms
 
-  Two bathrooms (one en-suite)
 
                                            -  Large garage with workshop area
 
-  100' walled rear garden
 
-  Gas central heating
 
-  No onward chain
 
 
                                 
                                
                                
                                
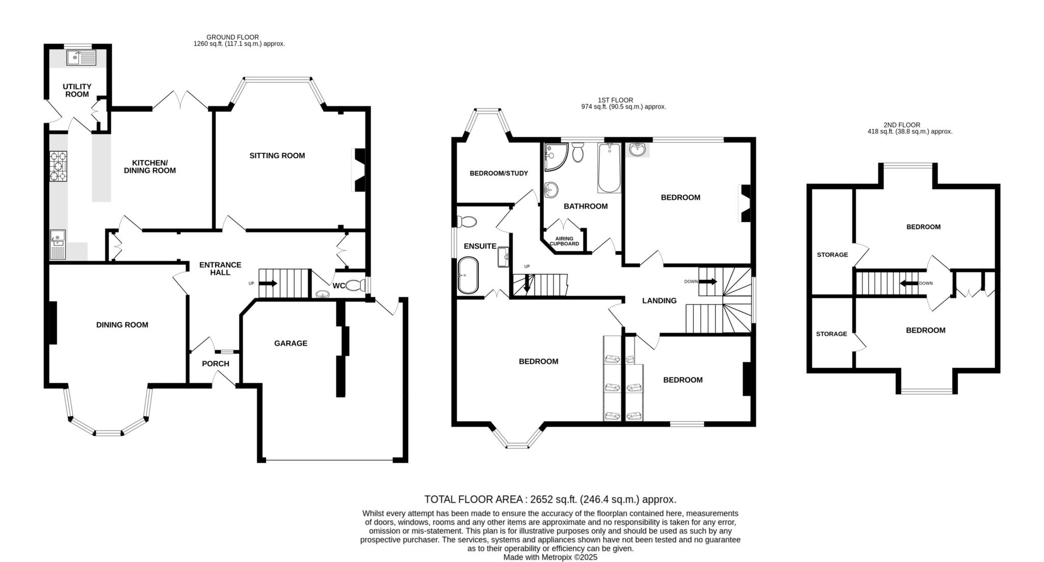
                                    A well proportioned five/six  bedroom detached house of pleasing character situated in the favoured Upperton area of Eastbourne. offering generous accommodation, arranged over three floors available with no onward chain. The ground floor accommodation comprises a large entrance hall, a sitting room, a dining room, a kitchen/breakfast room, a utility room, and a cloakroom. There are three/four  first floor bedrooms (the master having an en-suite bathroom), a family bathroom, and two further bedrooms on the second floor. The property has a large  garage with workshop area  and delightful gardens ,  with the rear walled garden extending to over 100ft. The property requires some updating but had a new roof in 2019,  and benefits from  gas fired central heating with a new boiler installed in  2023  and enjoys distant sea views from the rear. Located in one of Eastbourne's most  sought-after tree-lined roads in the favoured Upperton area, the house is considered to occupy a convenient location being within 1.25 miles of Eastbourne's mainline railway station and comprehensive shopping facilities, with a Waitrose store in the vicinity.
                                
                                
                                
                                
                                
                                    
                                        SPACIOUS ENTRANCE HALL
SITTING ROOM - 16'5" (5m) Into Bay x 16'2" (4.93m)
DINING ROOM - 18'5" (5.61m) Into Bay x 14'10" (4.52m)
KITCHEN/DINING ROOM - 17'8" (5.38m) Max x 14'2" (4.32m) Max
UTILITY ROOM - 10'0" (3.05m) x 6'4" (1.93m)
CLOAKROOM
FIRST FLOOR LANDING
BEDROOM 1 - 17'10" (5.44m) Max x 15'7" (4.75m) Into Bay
EN-SUITE BATHROOM
BEDROOM 2 - 13'10" (4.22m) x 13'4" (4.06m)
BEDROOM 3 - 12'9" (3.89m) x 9'3" (2.82m)
STUDY/BEDROOM - 9'5" (2.87m) Max x 10'5" (3.18m) Into Bay
FAMILY BATHROOM
SECOND FLOOR LANDING
BEDROOM 4 - 15'3" (4.65m) Max x 10'8" (3.25m) Into Bay
Access to eaves storage
BEDROOM 5 - 15'3" (4.65m) Max x 11'2" (3.4m) Into Bay
Door to eaves storage
OUTSIDE
GARAGE
In two sections measuring 16`9 max x 15`5
FRONT GARDEN
REAR GARDEN
COUNCIL TAX
Band "G"
EPC
Band "D"
                                    
                                
                                
                                
                                    
Council Tax
Eastbourne Borough Council, Band G
Notice
Please note we have not tested any apparatus, fixtures, fittings, or services. Interested parties must undertake their own investigation into the working order of these items. All measurements are approximate and photographs provided for guidance only.
                                
                                
                                
                                                                
                                    
                                    
                                
                             
                                                                
                                
	
                                        
                                        
                                            
                                            /// demand.occurs.spine is the what3words address for the best entrance. what3words has given every 3 metre square in the world a unique combination of 3 random words. 
  
                                
                                
                            
                            
                            
                                                                
                            
                            
                                                                
                            
                            
                            
                            
                                
                                
                                    
                                        | Utility | 
                                        Supply Type | 
                                    
                                    
                                        | Electric | 
                                        Unknown | 
                                    
                                    
                                        | Gas | 
                                        Unknown | 
                                    
                                    
                                        | Water | 
                                        Unknown | 
                                    
                                    
                                        | Sewerage | 
                                        Unknown | 
                                    
                                    
                                        | Broadband | 
                                        Unknown | 
                                    
                                    
                                        | Telephone | 
                                        Unknown | 
                                    
                                    
                                
 
                                
                                
                                
                                    
                                       | Other Items | 
                                       Description | 
                                    
                                    
                                        | Heating | 
                                        Gas Central Heating | 
                                    
                                    
                                        | Garden/Outside Space | 
                                        Yes | 
                                    
                                    
                                        | Parking | 
                                        No | 
                                    
                                    
                                        | Garage | 
                                        Yes | 
                                    
                                
 
                                
                                
                                
                                    
                                        | Broadband Coverage | 
                                        Highest Available Download Speed | 
                                        Highest Available Upload Speed | 
                                    
                                    
                                        | Standard | 
                                        16 Mbps | 
                                        1 Mbps | 
                                    
                                    
                                        | Superfast | 
                                        80 Mbps | 
                                        20 Mbps | 
                                    
                                    
                                        | Ultrafast | 
                                        1800 Mbps | 
                                        1000 Mbps | 
                                    
                                
            
                                
                                
                                    
                                        | Mobile Coverage | 
                                        Indoor Voice | 
                                        Indoor Data | 
                                        Outdoor Voice | 
                                        Outdoor Data | 
                                    
                                    
                                        | EE | 
                                        Likely | 
                                        Likely | 
                                        Enhanced | 
                                        Enhanced | 
                                    
                                    
                                        | Three | 
                                        Likely | 
                                        Likely | 
                                        Enhanced | 
                                        Enhanced | 
                                    
                                    
                                        | O2 | 
                                        Likely | 
                                        Likely | 
                                        Enhanced | 
                                        Enhanced | 
                                    
                                    
                                        | Vodafone | 
                                        Likely | 
                                        Likely | 
                                        Enhanced | 
                                        Enhanced | 
                                    
                                
            
                                Broadband and Mobile coverage information supplied by Ofcom.