Price £775,000 New Instruction
  • Magnificent extended four bedroom detached house
  • Stunning open plan kitchen, dining area and snug with bi-fold doors to gardens
  • Sitting room plus lounge
  • Family bathroom, modern en-suite shower room and ground floor WC
  • Driveway for several vehicles plus a garage
  • Welcoming reception hall
  • Secluded gardens
  • Spacious accommodation throughout
  • Solar Panels and heat pump
  • In ground counter current swimming pool

A truly outstanding four bedroom period detached house which has been the subject of much improvement by the current owners and boasts a generous corner plot with stunning gardens and a heated swimming pool. This impressive home is conveniently located close to local parks, schools, shops, bus routes, Eastbourne district general hospital and enjoys bright and spacious accommodation comprising welcoming reception hall, sitting room, lounge, ground floor wc and a particular feature is the magnificent extended living space at the rear of the house which comprises a modern kitchen with breakfast bar which opens onto a large dining area and snug with bi-fold doors opening onto the beautiful rear garden, there is also a convenient utility room located off the kitchen. A beautiful stair case with original wood and modern glass inserts leads from the reception hall to a large first floor landing where there are four excellent size bedrooms all with built in wardrobes plus the master bedroom enjoys a luxurious contemporary shower room/wc. There is a further family bathroom which is big enough that it offers the potential to create a second en-suite from one of the other bedrooms. Externally to the front of the property there is a driveway proving ample off road parking leading to a single garage and to the rear there is a lovely secluded garden principally laid to lawn and with areas of patio plus an in ground heated counter current swimming pool. The property has the added benefit of a heat pump which helps with the cost effectiveness running the property, and in addition to solar panels which contribute significantly to the cost towards the swimming pool. Additional benefits include double glazing and gas central heating.

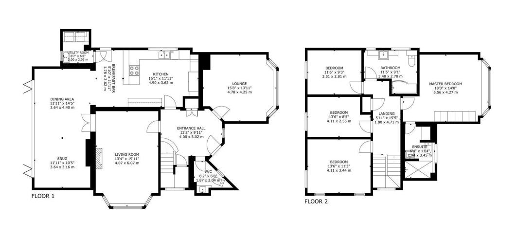
RECEPTION HALL

SITTING ROOM - 19'11" (6.07m) x 13'4" (4.06m)

LOUNGE - 15'8" (4.78m) x 13'11" (4.24m)

KITCHEN - 16'1" (4.9m) x 11'11" (3.63m)

UTILITY ROOM - 6'8" (2.03m) x 6'7" (2.01m)

OPEN PLAN DINING AREA & SNUG.

DINING AREA - 14'5" (4.39m) x 11'11" (3.63m)

SNUG - 11'11" (3.63m) x 10'5" (3.18m)

DOWNSTAIR WC

FIRST FLOOR LANDING

BEDROOM 1 - 18'3" (5.56m) x 14'0" (4.27m)

EN-SUITE SHOWER ROOM

BEDROOM 2 - 13'6" (4.11m) x 11'3" (3.43m)

BEDROOM 3 - 13'9" (4.19m) x 8'5" (2.57m)

BEDROOM 4 - 11'6" (3.51m) x 9'3" (2.82m)

BATHROOM

OUTSIDE:

DRIVEWAY

GARAGE

REAR GARDEN

IN GROUND SWIMMING POOL

COUNCIL TAX:
Band "F"

EPC:
"C"



Council Tax
Eastbourne Borough Council, Band F

Notice
Please note we have not tested any apparatus, fixtures, fittings, or services. Interested parties must undertake their own investigation into the working order of these items. All measurements are approximate and photographs provided for guidance only.

Floor Plan
EER Chart

The Energy-Efficiency Rating is a measure of a home's overall efficiency. The higher the rating, the more energy-efficient the home is, and the lower the fuel bills are likely to be.

Utility Supply Type
Electric Mains Supply
Gas Mains Supply
Water Mains Supply
Sewerage Unknown
Broadband Unknown
Telephone Unknown

Other Items Description
Heating Gas Central Heating
Garden/Outside Space Yes
Parking Yes
Garage Yes

Broadband Coverage Highest Available Download Speed Highest Available Upload Speed
Standard Unknown Unknown
Superfast Unknown Unknown
Ultrafast Unknown Unknown

Mobile Coverage Indoor Voice Indoor Data Outdoor Voice Outdoor Data
EE Unknown Unknown Unknown Unknown
Three Unknown Unknown Unknown Unknown
O2 Unknown Unknown Unknown Unknown
Vodafone Unknown Unknown Unknown Unknown

Broadband and Mobile coverage information supplied by Ofcom.


marker icon